
ÏîÄ¿Äñî«Í¼
ÏîÄ¿ÐÅÏ¢
ÏîÄ¿Ãû³Æ£º±±¾©´óѧµÚÈýÒ½Ôº³çÀñÔºÇøÀ©½¨ÌáÉý£¨´´ÉËÖÐÐÄ£©¹¤³Ì
Éè¼Æµ¥Î»£ºÖо³¹ú¼Ê¹¤³ÌÉè¼ÆÓÐÏÞ¹«Ë¾
ÓõØÃæ»ý£º21735.5ƽ·½Ã×
ÐÞ½¨Ãæ»ý£º14934.5ƽ·½Ã×
Éè¼ÆÖ÷´´£ºËﶬ¡¢ÁõÐËÍú
Éè¼ÆÖ¸µ¼£ºÐì¾³¡¢Ðí½ø¡¢ÁõÁÙ°²
ÎÄ
£üÁõÐËÍú Ëﶬ£¨Öо³¹ú¼Ê¹¤³ÌÉè¼ÆÓÐÏÞ¹«Ë¾£©
±à¼
£üÀîÁôËø
ÓÉÓÚ¹¤Òµ¡¢Å©Òµ¡¢½»Í¨Òµ¼°ÌåÓýÊÂÒµµÄ¸ßËÙÉú³¤£¬ÖÖÖÖʹÊËùÔì³ÉµÄ´´ÉËÈÕÇ÷Ôö¶à¡£´´É˲»µ«±¬·¢ÂÊ¸ß , ²¢ÇÒˮƽ²î±ðºÜ´ó£¬ÑÏÖØÇÒÖØ´óµÄÉËÇéÉõÖÁ»áΣ¼°ÉúÃü¡£ÓÉÓÚÒ»Ñùƽ³£Ò½ÔºµÄ¼±ÕﲿÎÞÁ¦¾ÈÖÎÖØÉËÔ±£¬ÒÔÊÇ´´ÉËÖÐÐĵĽ¨Éè±»¸÷´óÒ½ÔºÌáÉÏÈճ̡£
ÕżҿÚÊгçÀñÇøÈËÃñҽԺʼ½¨ÓÚ 1956 Ä꣬ÊÇÒ»¼Ò¶þ¼¶¼×µÈ×ÛºÏÒ½Ôº£¬Ò²ÊǾàÀë2020 Ä궬°Â»á³çÀñÈüÇø×î½üµÄÒ½Ôº£¬µ«ÒÔÆäÏÖÓеÄÒ½ÁÆË®Æ½£¬Ô¶È±·¦ÒÔÖª×㶬°Â»áµÄÒ½Áưü¹ÜÐèÇó¡£ÒÔÊÇ£¬ÔÚ 2018Äê9Ô£¬±±¾©´óѧµÚÈýÒ½Ôº£¨ÒÔϼò³Æ“±±Ò½ÈýÔº”£©ºÍÕżҿÚÊÐÇ©ÊðºÏ×÷ÐÒ飬ÔÚ³çÀñÇøÈËÃñÒ½ÔºµÄ»ù´¡ÉÏÉèÁ¢±±Ò½ÈýÔº³çÀñÔºÇø£¬²¢ÔöÉèÒ»¸ö¹ú¼ÊÔ˶¯ÕïÁÆ´´ÉËÖÐÐÄ¡£ÔÚÈ˲ÆÎïÖÜÈ«ÍйܵÄÇéÐÎÏ£¬±±Ò½ÈýÔº½«¿ìËÙÖÜÈ«ÌáÉý³çÀñÔºÇøµÄÒ½ÁÆË®Æ½£¬°Ñ³çÀñÔºÇø´òÔì³É¶¬°Â»áÒ½Áưü¹ÜµÄ“ǰÉÚÒ½Ôº”¡£

¶¬°Â»áÔ°µØÇøÎ»Í¼
°ü¹Ü¶¬°Â£¬½¨Éè“´óר¿Æ”
³çÀñÔºÇøÆ¾Ö¤¶¬°Â»áµÄÒ½Áưü¹ÜÐèÇó£¬Ã÷È·Ê÷Á¢ÁË“´óר¿Æ¡¢Ð¡×ۺϔµÄ½¨ÉèÆ«Ïò¡£ÆäÖГ´óר¿Æ”ÊÇÖ¸Î§ÈÆ½â¾ö¶¬°Â»áºÍÌåÓýÔ˶¯Ò½Áưü¹ÜÎÊÌ⣬½¨ÉèÒ»¸öÇøÓò»¯ÒÔÖ¹ú¼Ê»¯µÄÔ˶¯ÕïÁÆ´´ÉËÖÐÐÄ£¬“С×ۺϔÊÇÖ¸Î§ÈÆ½â¾öÍâµØÈºÖÚ¿´²¡¾ÍÒ½ÎÊÌ⣬ÖÜÈ«ÌáÉýÒ½ÔºµÄÒ½ÁÆ·þÎñˮƽ¡£±ùÑ©Ô˶¯ËðÉËÓбðÓÚÆäËûÔ˶¯ËðÉË£¬ÓÉÓÚ»¬Ñ©¡¢Áï±ùµÈÏîÄ¿µÄÔ˶¯ËÙÂʺܿ죬һµ©±¬·¢ÒâÍ⣬¶ÔÈËÌåÔì³ÉµÄΣÏÕÒ²½ÏÁ¿ÑÏÖØ£¬ÍùÍùÊÇÈ«Éí¶à´¦ËðÉË£¬Õâ¾Í¸ø³çÀñÔºÇø´´ÉËÖÐÐĵľÈÖÎÄÜÁ¦´øÀ´Á˲»Ð¡µÄÌôÕ½£¬Í¬Ê±Ò²¸øÒ½ÔºµÄ½»Í¨ÍýÏëºÍÇéÐÎÉè¼ÆÌá³öÁ˺ܸߵÄÒªÇó¡£
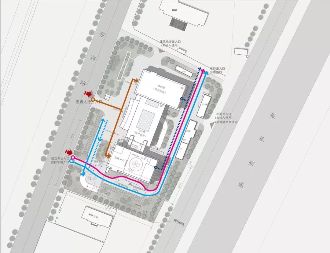
ÓÉÓÚ´´ÉËÖÐÐÄÊǸÄÀ©½¨ÏîÄ¿£¬ÒÔÊDz»µ«Òª×öºÃ×ÔÉíµÄ½»Í¨Éè¼Æ£¬²¢ÇÒҪе÷ºÃÓëÔÔºÇøÖ®¼äµÄ½»Í¨¹ØÏµ¡£ÔÔºÇøÎ÷²àµÄÖ÷Èë¿ÚÊÇÈ˳µ»ìÐУ¬¶«±±Æ«ÏòµÄ´ÎÊÕÖ§¿ÚΪÎÛÎï³ö¿Ú£¬Î÷±±Æ«ÏòµÄ´ÎÈë¿ÚºÍ¶«²àµÄÊÕÖ§¿ÚÓÉÓÚÖÜΧȱ·¦»ù´¡ÉèÊ©½¨É裬²¢Î´¿ª·ÅʹÓá£
ÔÚ¸ÃÏîÄ¿µÄ½»Í¨ÍýÏëÖУ¬ÎÒÃǰÑÔÔºÇøµÄÖ÷Èë¿Ú¸ÄΪÈËÁ÷Ö÷Èë¿Ú£¬²¢ÔÚÔ°µØÎ÷ÄÏÆ«ÏòÉèÖÃÁËÒ»¸ö³µÐÐÈë¿Ú£¬Ò»·½ÃæÊÇ»º½âÖ÷Èë¿ÚÈ˳µ»ìÐеĽ»Í¨Ñ¹Á¦£¬ÁíÒ»·½ÃæÊÇÀû±ãÇÀ¾È³µÍ¨ÐС£Í¨¹ýºÏÀíµÄ½»Í¨×éÖ¯Éè¼Æ£¬Ö¼ÔÚʵÏÖÈËÁ÷¡¢ÎïÁ÷¡¢³µÁ÷µÈ½»Í¨Á÷ÏßÇåÎúÃ÷È·¡¢Ò×ÓÚʶ±ð£¬ïÔÌÓµ¶ÂºÍÓØ»Ø¡£
ÏîĿ԰µØÊÕÖ§¿ÚÉè¼Æ¼°Á÷Ïß

¶¬°Â»áʱ´ú£¬³çÀñÔºÇøµÄÒ½»¤Ö°Ô±½«¿ÉÒÔ×öµ½ 15 ·ÖÖÓÖ®ÄÚµÖ´ïÈü³¡£¬¶ÔÉ˲¡Ô±¾ÙÐÐʵʱ¾ÈÖΣ¬ÐëҪʱ£¬»¹¿ÉÓÃÖ±Éý»ú½«É˲¡Ô±×ªÒƵ½±±Ò½ÈýÔº¡£Îª´Ë£¬³çÀñÔºÇøÐÂÔöÁË 30 ¼äµ¥È˲¡·¿£¬²¢ÔÚ¸ÃÔºÔ²¡·¿Â¥µÄ¶þ¡¢Èý¡¢ËIJãˢР36 ¼äµ¥È˲¡·¿£¬ÒÔÖª×ã¸ü¶àµÄ¾ÈÖÎÐèÇó¡£ÁíÍ⣬´´ÉËÖÐÐÄ»¹½¨ÉèÁËǿʢµÄÊý¾ÝÖÐÐÄϵͳ£¬Éè¼ÆÁËÔØÖØ8 ¶ÖµÄÎݶ¥Í£»úƺ£¬ÒÔ°ü¹Ü¸÷¸ö¾ÈÖλ·½ÚÎÞ·ì¶Ô½Ó£¬ÔÚ×î¶ÌµÄʱ¼äÄÚΪÉ˲¡Ô±Ìṩ¾ÈÖΡ£
²¡·¿²ãVIP²¡·¿
“ƽսÍŽᔵÄ˼Á¿
ΪÁËÌṩԽ·¢ÖÜÈ«ºÍÔ½·¢×¨ÒµµÄÒ½ÁÆ·þÎñ£¬³çÀñÔºÇø½«×齨רҵµÄÒ½Áưü¹ÜÍŶӣ¬²»µ«°üÀ¨±±Ò½ÈýÔº±¾²¿µÄÒ½Éú£¬»¹°üÀ¨±±¾©Ìì̳ҽԺÉñ¾¿Æ¡¢ÄÔÍâ¿ÆµÄÒ½ÉúÒÔ¼°±±¾©Í¬ÈÊÒ½Ôº¶ú±Çºí¿ÆµÄÒ½Éú£¬È·±£“ÖØÐµ½½Å”µÄÉ˲¡¶¼¿ÉÒÔ¾ÈÖΡ£
ÃÅÕﲿÈËÊÓͼ
ƾ֤ÕûÌåÍýÏ룬³çÀñÔºÇø²»µ«ÊÇΪ¶¬°Â»á¼°Î´À´³Ð½ÓµÄ¸÷ÏîÌåÓýÈüÊÂÌṩҽÁưü¹Ü·þÎñ£¬²¢ÇÒ»¹½«×÷ÎªÇøÓòÒ½ÁÆÖÐÐÄΪÕżҿÚÊÐÒÔ¼°ÖܱߵØÇøÌṩ»ù±¾Ò½ÁÆ·þÎñ¡£Îª´Ë£¬³çÀñÔºÇø½«ÔÚ¶¬°Â»á¿¢Êºó¾ÙÐÐһϵÁÐˢУ¬¼ÌÐø·þÎñ³çÀñÈËÃñ¡£ÒÔÊÇ£¬ÎÒÃÇÔÚ½¨ÉèÖ®³õ±ãÍŽáδÀ´µÄË¢ÐÂÐèÇ󣬽ÓÄÉÁË˳ӦÐÔÉè¼Æ£¬ÀýÈçµ¥È˲¡·¿Ô¤ÁôÁËÁ½Ì×Ò½ÓÃ×°±¸´ø£¬ÒÔ±ãδÀ´Ë¢ÐÂΪ˫È˲¡·¿£»¸´ºÏÊÖÊõÊÒÁô³öˢкÍÉú³¤µÄÓàµØ£¬ÒÔ±ãδÀ´ÔÚ¸´ºÏÊÖÊõÁ¿½ÏСµÄÇéÐÎÏ£¬½« 2 ¼ä´óÐ͵ĸ´ºÏÊÖÊõÊÒË¢ÐÂΪ 3 ¼äͨË×ÊÖÊõÊÒ¡£
Éè¼ÆÉϵÄ̽Ë÷
¹¦Ð§×éÖ¯ ´´ÉËÖÐÐÄÔÚµØÏÂÒ»²ãÉèÖÃÁ˺˴żì²éÊÒ¡¢½éÈëÊÖÊõÊÒÒÔ¼°µØÏ³µ¿â£»ÊײãÉèÖÃÁ˼±Õï´óÌü¡¢ÇÀ¾ÈÇøÒÔ¼°Ïà¶ÔÓ¦µÄÄ¥Á·¿ÆÊÒ£»¶þ²ãÉèÖÃÁËÊÖÊõÇø¡¢ICU ²¡·¿¡¢Ñª¿â£»Èý²ãºÍËIJãÉèÖÃÁËÕïÇøºÍ¿µ¸´Çø£»Îå²ãºÍÁù²ãÉèÖÃÁ˲¡·¿ºÍÐÐÕþ°ì¹«Çø£»Îݶ¥ÉèÖÃÁËÍ£»úƺ¡£ÆäÖеÄÊÖÊõÇøÓÉ×î³õÍýÏëµÄÁù²ãµ÷½âΪ¶þ²ã£¬ÓÉÓÚÕâÖÖÉè¼Æ³ýÁËÄÜÓëÊײãÔöÇ¿Áª¶¯¶øÐγɿìËٵēÇÀ¾È + ÊÖÊõ”·þÎñģʽÍ⣬»¹ÄÜÓÅ»¯Î£ÖØÉ˲¡Ô±µÄ¾Íҽ·¾¶¡£¶¬°Â»áʱ´ú£¬³çÀñÔºÇøÎüÊÕµÄÉ˲¡Ô±ÖÐͨ¹ýÇÀ¾È³µÔËË͵ľӶֱ࣬Éý»úÔËË͵ĽÏÉÙ£¬ÒÔÊÇÊÖÊõÇø·ÅÔÚ¶þ²ã±ãÓÚ¿ªÕ¹ÊÖÊõ¡£²¢ÇÒÊÖÊõÊÒ·ÅÔÚ¶þ²ã£¬Ò²Äܹ»×î´óÏ޶ȵØïÔÌÎݶ¥Í£»úƺµÐÊÖÊõ¼ä±¬·¢µÄÕð¾ªÓ°Ïì¡£
¶þ²ãÊÖÊõÊÒÍâ×ßÀÈ
Ò½Áƹ¤ÒÕÁ÷³ÌÉè¼Æ ÓÉÓÚ¼±ÕïÇÀ¾È·þÎñÊdzçÀñÔºÇøµÄÖØÖÐÖ®ÖØ£¬ÒÔÊÇÎÒÃÇÓÈÆä×¢ÖØ¼±ÕïÇøÓòÖи÷¿ÆÊÒÓë¹¦Ð§ÇøµÄÁªÏµ£¬ÔÚ¼±Õﲿ·ÖÉèÖÃÁËÄÚ¿Æ¡¢¹Ç¿Æ¡¢Ô˶¯Íâ¿Æ¡¢ÆÕÍâ¿Æ¡¢Éñ¾¿ÆµÈÕïÊҺͷÅÉä¿Æ¡¢Ä¥Á·¿ÆµÈ¹¦Ð§¿ÆÊÒ£¬²¢Éè¼ÆÁËÏìÓ¦µÄºòÕïÇø¡£ÎªÁËÌá¸ß·þÎñЧÂÊ£¬ÎÒÃÇ»¹ÎªÎ£ÖØ»¼ÕßÉèÖÃÁËרÓõçÌÝ£¬Àû±ãÊײãÇÀ¾ÈÇøÓë¶þ²ãÊÖÊõÇøÒÔ¼°ÓëÎݶ¥Í£»úƺµÄÁªÏµ¡£
¼±ÕﲿÈËÊÓͼ
ÓÉÓÚÔÔºÇøÖÐÐũӦÊҵĿռäÃæ»ýÓ빩ӦÁ¿¾ù¿ÉÖª×ã³çÀñÔºÇøÏÖÓеÄÒ½ÁÆÐèÇó£¬ÒÔÊÇÎÒÃÇÕâ´Î²¢Î´¶ÔÆä¾ÙÐиĽ¨»òÀ©½¨£¬¶øÊǽ¨ÉèÁË 12 ¸öÎïÁ÷Õ¾µã£¬Ê¹ÓÃÖÐÐÍÏáʽÎïÁ÷ϵͳÀ´ÎªÄ¥Á·¿ÆºÍÊÖÊõÊÒÔËËÍÇå½àÎïÆ·¡£²¢ÇÒÔÚ´´ÉËÖÐÐÄÏîÄ¿ÖУ¬ÎÒÃÇ»¹ÉèÖÃÁ˶à¸öÆø¶¯ÎïÁ÷Õ¾µã£¬Ê¹ÓÃÆø¶¯ÎïÈö²¥ÊäϵͳÀ´´«ËÍ X- ¹âƬ¡¢»¯Ñé±ê±¾¡¢»¯ÑéЧ¹û¡¢²¡Àú¿¨µÈСÐÍÎïÆ·£¬Õ⼫´óÌá¸ßÁ˸÷»¤Ê¿Õ¾µÄÊÂÇéЧÂÊ£¬ïÔÌÁËÒ½»¤Ö°Ô±µÄÍù·µÐÐ×ß¡£
ÏîĿԸ¾°
×÷ΪÔÔºÇø¹¦Ð§ÉϵÄÔö²¹£¬´´ÉËÖÐÐÄÏîÄ¿Äܹ»³ä·ÖÍØÕ¹ºÍÔö²¹¸ÃÔºµÄ¼±ÕïÇÀ¾È·þÎñ¡£ÔÚ½¨³É֮ǰ£¬ÔÔºÇøµÄÒ¹¼äÃÅÕïÓëÒ¹¼ä¼±ÕïÐèÒª³¬¸ººÉÔËÐУ¬½¨³ÉÖ®ºó£¬´´ÉËÖÐÐĽ«¿ÉÒÔ×÷Ϊ×ÔÁ¦µÄ¼±ÕïÇÀ¾ÈÖÐÐÄ£¬È«ÌìºòÔËÐС£