ÔÆ¶¥¹ú¼Ê¹ÙÍøÈë¿Ú

ÄúÄ¿½ñλÖãºÖ÷Ò³ > ÐÂÎÅ×ÊѶ > ÐÐÒµ¶¯Ì¬ >
À¸Ä¿·ÖÀà>

´óµ¨Á¢Ò죡¡°ÌÝÌҽԺ~

Ðû²¼Ê±¼ä£º2019-09-04 11:42    ×÷ÕߣºÔƶ¥¹ú¼Ê¹ÙÍøÈë¿Ú¿Æ¼¼     ä¯ÀÀ´ÎÊý£º
RS Pondok Indah Bintaro JayaÒ½ÔºÊÇÑżӴïÒ»¼ÒÓµÓÐ230¸ö´²Î»µÄ˽Á¢Ò½Ôº¡£¸ÃÏîÄ¿·ÖÁ½¸ö½×¶Î¾ÙÐн¨É裬ʱ´úÈÔÓпª·ÅÇøÓò¹©»¼ÕßʹÓá£Ò½ÔºµÄ·ÖÆÚ½¨ÉèÊǶԴó±¾ËþÂÞ×ÜÌåÍýÏëµÄ½×¶ÎÐÔÉú³¤µÄÒ»¸ö×é³É²¿·Ö¡£×÷Ϊ¾àÀëÑżӴï×î´óºÍ×î½üµÄÎÀÐǶ¼»á£¬BintaroûÓдÓÐÞ½¨ÇéÐÎÈëÊÖ£¬¶øÊÇ˼Á¿µ½ÁËÑ­»·¡¢Àû±ã²½ÐеľàÀ롢ˮÃô¸ÐµÄÉè¼ÆºÍ¾°¹ÛÅþÁ¬¡£
ÔÆ¶¥¹ú¼Ê¡¤(Öйú)Ψһ¹Ù·½ÍøÕ¾
 
Óë×ÔÈ»ÈںϵēÌÝÌï”Ò½Ôº
ÐÞ½¨½â¾ö¼Æ»®Ïò¶«ÄÏÑÇÌÝÌïÖ¾´£¬ËÌÑïÓ¡¶ÈÄáÎ÷ÑǵÄË®ºÍÈÈ´øÐÔ×Ó¡£µñËܰãµÄ×¡ÔºÂ¥×øÂäÔÚÒ»¸öƽ̨µÄ¶¥²¿£¬´øÓÐÉý³ÁµÄÂÌÉ«¼Ü×Ó£¬»¨ÅèÏäºÍ½ðÊôǶ°å¡£ËüÃDZ£»¤²¡È˺Ͳ¡·¿ÃâÊÜÇ¿ÁÒµÄÑô¹âÕÕÉ䣬²¢×ÊÖú¼õÇáÈÈÁ¿µÄÔöÌí¡£ÕâÖÖЧ¹ûÊÇÒ»ÖÖµñËÜÐÎʽ£¬Í¨¹ý¹âÏßµ÷Àí£¬ÎªÂÌÉ«Îݶ¥ºÍÔ¶´¦µÄ¶¼»á¼¡ÀíÌṩÁËÔ¶¾°¡£ÌÝÌïÐÞ½¨ÊǶ«ÄÏÑÇÌØÓеÄÎÄ»¯Õ÷Ïó¡£ÌÝÌï°üÀ¨ÑØ×ÅбÆÂÖÆ×÷ʯǽºÍ½«¸ßµØË¢Ð³ɸûµØµÄµÈ¸ßÏß¡£ÆäЧ¹ûÊÇÒ»¸öÍêÕûµÄɽÆÂÌÝÌïµÄ¶¥²¿£¬Ò»¸öÓÉ×÷ÎïÁýÕÖµÄÅ©ÌïµñËÜϵͳ¡£É½¾°¹ÛÒÔ¼«ÆäÈËÐÔ»¯µÄ·½·¨·ºÆð¡£
ÔÆ¶¥¹ú¼Ê¡¤(Öйú)Ψһ¹Ù·½ÍøÕ¾

ÔÆ¶¥¹ú¼Ê¡¤(Öйú)Ψһ¹Ù·½ÍøÕ¾
 
ÌÝÌï”Ò½ÔºÐÞ½¨Éè¼ÆÀíÄî
¸ÃÒ½Ôº·´Ó¦ÁËÒ»¸öÕûºÏÁË¿µ½¡ºÍÉçÇøµÄÕûÌå¶¼»áÉè¼Æ¼Æ»®¡£¸ÃÉèÊ©ÊÇ´ó¶¼»áBintaroµÄÒ»²¿·Ö£¬°üÀ¨ÍýÏëµÄÂÌÉ«×ßÀÈ¡¢¶àÓÃ;ÉÌÒµÐÞ½¨¡¢ÁãÊÛ¡¢¶ÌÆÚסËÞÉèÊ©ºÍ¶à·½ÃæµÄסլ¿ª·¢¡£
ÔÆ¶¥¹ú¼Ê¡¤(Öйú)Ψһ¹Ù·½ÍøÕ¾

ÔÆ¶¥¹ú¼Ê¡¤(Öйú)Ψһ¹Ù·½ÍøÕ¾
±¾Éè¼ÆÖ¼ÔÚΪÍâµØºÍ¹ú¼Ê»¼ÕßÌṩһÁ÷µÄÒ½ÁÆ·þÎñ£¬²¢ÒÔ»¼ÕßΪÖÐÐÄ£¬ÒÔ¿Í»§µÄ·þÎñºÍ׿ԽƷÖÊΪ½¹µã£¬ÒÔÓÅÒìµÄ¹«Ë¾ÖÎÀíºÍÓÅÒìµÄÁÙ´²Õþ¸®Ô­ÔòΪ»ù´¡£¬ÒÔÁ¢ÒìµÄ·½·¨Ìṩ·þÎñ¡£Éè¼ÆÖÐÈÚÈëÁË»ùÓÚÃܶȵÄÉè¼ÆºÍ¿ÉÒ»Á¬ÐÔÉè¼Æ£¬×î´óÏ޶ȵØÊ¹ÓÃ×ÔÈ»¹â£¬½«Ô±¹¤µÄ³öÐоàÀë¼õÖÁ×îµÍ£¬²¢½ÓÄÉ´ó²£Á§´°½«»¼Õß´ÓÎÔÊÒµÄÊÓÒ°¿òÆðÀ´¡£Ò½ÔºÕûºÏÁ˶àÖÖÂÌÉ«ÊôÐÔ£¬Èç¿ÉÒ»Á¬Óõؽ¨Òé(site)¡¢Ë®ºÍÄÜԴЧÂÊ£¬ÒÔ¼°ÓÉïÔÌ­ÎÛȾÎïµÄ¸ß¿Æ¼¼Ö§³ÖµÄÇéÐÎÓ°ÏìÆÊÎö(AMDAL)¡£
ÔÆ¶¥¹ú¼Ê¡¤(Öйú)Ψһ¹Ù·½ÍøÕ¾

ÔÆ¶¥¹ú¼Ê¡¤(Öйú)Ψһ¹Ù·½ÍøÕ¾
 
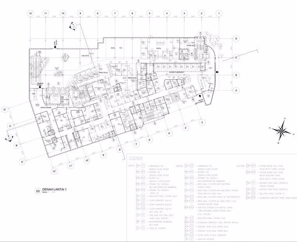
ÌÝÌï”Ò½ÔºÐÞ½¨Éè¼Æ½á¹¹
10²ã¿ª·¢°üÀ¨4²ãסԺµ¥Î»¡¢3²ãÕï¶ÏºÍÖÎÁÆ¡¢1²ãÔ±¹¤²¿·ÖºÍ2²ãºóÇں͵ØÏÂÍ£³µ³¡¡£ÉèÊ©°üÀ¨ÁãÊÛ¡¢Ò©·¿¡¢Ò½Ñ§Ó°Ïñ¡¢¼±Õï¿Æ¡¢ÃÅÕﲿ¡¢×¡Ôº²¿¡¢ÑÀ¿ÆºÍ¿µ¸´·þÎñ¡¢ÊÖÊõÊÒ¡¢½ÌÓýÀñÌᢸ¾Óײ¡·¿¡¢ÌØÊâÕչ˻¤Ê¿ÍжùËù¡¢×ÉѯÊÒ¡¢ÐÐÕþÇøÓò¡¢Ô±¹¤ÓòÍÇøºÍÐÝÏ¢Çø¡£ÏÖÔÚÓÐ100¸öסԺ´²Î»¿ª·Å£¬ÍêÈ«½¨³ÉºóÓÐʱ»úÀ©´óµ½230¸ö´²Î»¡£Ô±¹¤ºÍÓοÍÐÝí¬ÇøÌṩÁËÐÝÏ¢£¬×ÔÈ»ÖÊÁϺÍÈáºÍµÄÉ«²ÊÓÐÖúÓÚÓªÔìÒ»¸öËÉ¿ªµÄÇéÐΡ£ÔÚÖÐÍ¥ÄڵijÉÊìÊ÷ľÖУ¬ÓëÇ×Ôµ¹ØÏµ×îΪÏÔ×Å¡£Ò½ÔºÔÚÌṩÏȽøÒ½ÁÆÊÖÒÕºÍÊý×ÖÎÞÖ½»¯ÐÅϢϵͳ·½ÃæÒ²ÓÐÁ¢Òì¡£
ÔÆ¶¥¹ú¼Ê¡¤(Öйú)Ψһ¹Ù·½ÍøÕ¾

ÔÆ¶¥¹ú¼Ê¡¤(Öйú)Ψһ¹Ù·½ÍøÕ¾

ÔÆ¶¥¹ú¼Ê¡¤(Öйú)Ψһ¹Ù·½ÍøÕ¾

ÔÆ¶¥¹ú¼Ê¡¤(Öйú)Ψһ¹Ù·½ÍøÕ¾

ÔÆ¶¥¹ú¼Ê¡¤(Öйú)Ψһ¹Ù·½ÍøÕ¾

ÔÆ¶¥¹ú¼Ê¡¤(Öйú)Ψһ¹Ù·½ÍøÕ¾
 
ÏîÄ¿Ãû³Æ£ºÓ¡¶ÈPondok Indah Bintaro JayaÒ½Ôº
λÖãºÓ¡¶È
ÐÞ½¨Ê¦£ºÒøÍÐÂí˹ººÀû
ͼÎÄȪԴ£ºÖþÁúѧÉç


ÓÑÇéÁ´½Ó£º

Öþҽ̨ ÐÂÀË΢²© ¸ß¾§°å°É ¼¯³Éµõ¶¥°É Ìú½¨ÉÌ³Ç »Û´ÏÍø ¾ÅÕý½¨²ÄÍø °¢Àï°Í°Í Öйú½¨²ÄÍø Öйú½¨²Ä²É¹ºÍø ÖйúÐÞ½¨×°ÊÎÍø ÉîÛÚÉè¼Æ×ÜÔº Î÷°²²ÔÁú
18186209835
* ÐÕÃû£º
Q Q£º
* ÊÖ»úºÅÂ룺
µç×ÓÓʼþ£º
ÁôÑÔÖ÷Ì⣺
ÁôÑÔÄÚÈÝ£º
ÁôÑÔʱ¼ä£º
?
ÍøÕ¾µØÍ¼